首页
汽爆技术
汽爆试验设备
汽爆应用及效果展示
汽爆生产设备
汽爆系统及工程化
意见反馈
关于我们
联系我们
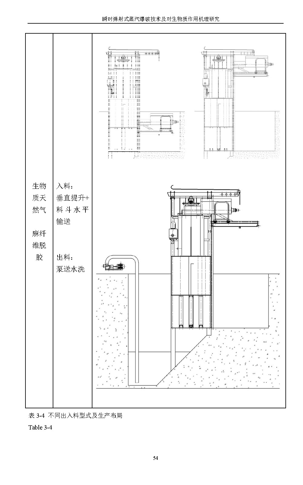
出入料方案及生产布局
发布时间:2024-04-12 10:16:35 浏览次数:880